A REDESIGN of part of a massive new Tamworth housing development has been given the green light.
Two apartment blocks will be replaced by houses as part of the changes to the third phase of the Dunstall Farm development.
This means there will be nine fewer units than the 232 previously proposed in Phase Three when a detailed planning application was approved last year.
Outline planning permission was granted in 2017 by Tamworth Borough Council for up to 800 homes on the land at Dunstall Farm, Dunstall Lane, as well as conversion of existing buildings for other uses such as retail or leisure and construction of commercial buildings and a new primary school.

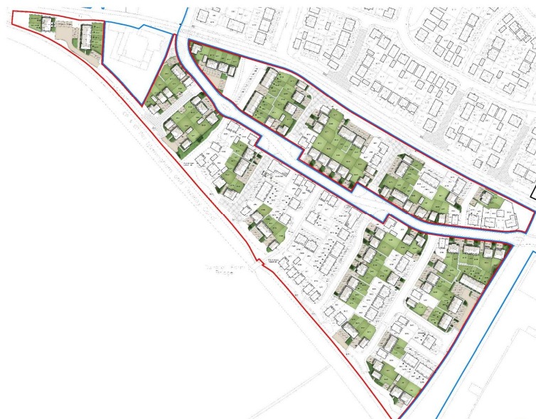
The amended site plan for the Dunstall Farm development presented to Tamworth Borough Council’s Planning Committee
A report to Tuesday’s Tamworth Borough Council planning committee said: “The details for Phase Three were previously approved, however for commercial reasons, amendments have been necessary. In main, the amendments propose a reduction of the overall number of units in the phase by nine.
“This reduction would be facilitated by the removal of two of the apartment blocks previously situated along the spine road. The apartments have been replaced by an alternative mix of dwellings. Aside from this, other minor changes are proposed to the positioning of plots to allow for larger external amenity areas as a result of the reduction in numbers. The development includes 167 private houses and 65 affordable dwellings.
“The 65 affordable dwellings would comprise of six (9%) one bedroom dwellings, 48 (74%) two bedroom dwellings, nine (14%) three bedroom dwellings and two (3%) four bedroom dwellings.”
Mark Elliot from Barratt Homes West Midlands, who spoke in support of the application at Tuesday’s meeting, told committee members: “The application is a removal of two apartment buildings and replacement with houses.
“This reduces the overall number of units but not the number of affordable dwellings previously agreed. While the amendments proposed are fairly minor it is considered they will enhance the quality of the previously approved scheme”
The committee unanimously approved the proposed changes.
Councillor Martin Summers said: “It seems fairly straightforward to me. I do not see any issues.”
| Here at Tamworth Informed, we want to say a huge thank you to all NHS Staff, Care Workers, Emergency Service Workers, Shop Staff and anyone else helping to keep us safe, healthy, fed, watered or connected to vital services during the last 12 months of the Covid Pandemic. Please stay safe and look after each other. |
|---|
Coronavirus restrictions remain in place across the country. In England:
|
|
Find out more information about COVID-19 on the NHS 111 website here |


